2569個喜歡
| 小區(qū)名稱 | 吾悅廣場 | 案例戶型 | 三居室 | 房屋面積 | 120m2 |
| 裝修風格 | 簡約 | 裝修價格 | 0.00萬 | 設計師 | 王漢寶 |
剪一段時光,讓人陶醉,
和家人在這里的每一個片段都充滿溫馨。
我們最想擁有的生活,
大概就是白天與黑夜的喧囂沉浸下去的時候,
有一份獨屬于自己的寧靜。

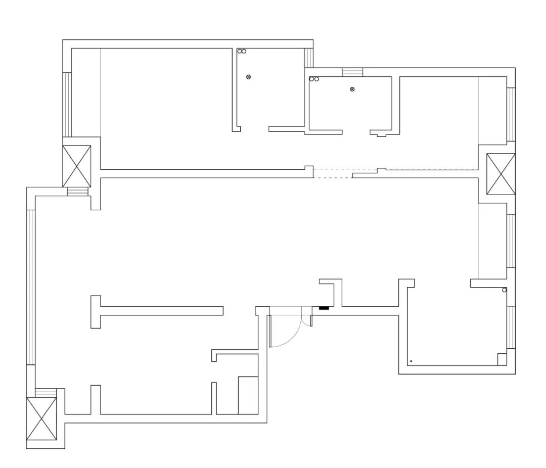
設計平面圖

▲原始結構圖

▲平面設計圖
Design concept/設計亮點
拓寬了衛(wèi)生間面積,設計了干濕分離。
餐廳區(qū)域設計了玻璃酒柜,顯得更加實用和美觀。
廚房臺面L型的設計布局,空間運用合理。
陽臺設置休閑區(qū)和晾衣區(qū),提高了居住實用性。
客 廳
LIVING ROOM


軟裝搭配選擇與整體相同的顏色,達成空間的協調統一。

整體空間形成了視覺上的沖擊,添加一道靚麗的色彩??蛷d陽臺一體,為整個空間帶來了充分的陽光,使得室內空間更加光彩明亮。

餐 廳
DINING ROOM


生活是反復播放日常串聯起的記憶長卷。將客廳與餐廳串聯,設計為開放式的布局,打造出讓人一目了然的流動空間,提高了互動性。

客廳一側打造了玻璃酒柜,既顯得美觀又能凸顯出客廳大氣簡約。黑色與白色的搭配呈現出大氣而又不失沉穩(wěn)。

餐廳區(qū)域沿用與客廳相同的基調,開放式餐桌合理利用空間,同時也滿足多人用餐的需求。為了更好的打開空間視覺,弱化了玄關空間的存在感,將玄關收納功能與鄰近的空間功能與結構進行整合。

餐桌一側打造了柜式收納場所,提高了家中生活用品的收納空間。米色系的柜子和深色的收納格更加的輕奢時尚,構成整潔、大方、有品位的空間。
廚房
KITCHEN


廚房連接餐廳,朋友來時,大家一起在這里做一做飯,喝喝酒。閑暇時做個簡餐為生活增添些許愜意,寧靜中求得舒適。
主 臥
MASTER BEDROOM
主臥通過對材質比例的運用增添空間格調,吊頂的照明燈飾與整體的氛圍十分搭配。臥室采光非常好,沒有用復雜的家具擾亂整個格局和打破整體的設計。米色大衣柜的設計提高了衣物收納,增加了實用性。



自然采光與室內光氛圍營造,結合空間所對應的功能,我們將光線與未來的生活場景相結合,營造出不同的空間意境。桌椅的放置恰到好處。
次 臥
SECOND BEDROOM


打造了收納的柜子和工作的桌子,提高了整個空間的實用性?;野咨哪举|衣柜和桌子與藍色系的窗簾形成撞色,凸顯臥室的溫馨。

次臥室中的色調與公共空間相呼應,采用了白色,撞色窗簾點綴整個空間,讓嘈雜的生活瞬間安靜下來,帶人走入靜謐舒適的休憩氛圍。
—— 知精準報價 避裝修深坑 ——